op 166 – Progetto della piazza e degli edifici delle Forze armate all’Esposizione universale di Roma, concorso, 1937-38, con Gabriele Mucchi e Mario Pucci, modello di scultura di Jenny Wiegmann Mucchi

opera 166

Progetto della piazza e degli edifici delle Forze armate all’Esposizione universale di Roma, concorso, 1937-38, con Gabriele Mucchi e Mario Pucci, modello di scultura di Jenny Wiegmann Mucchi

op166 copertina

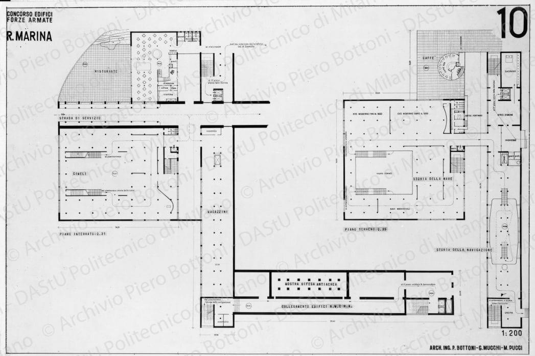
Nel piano generale dell’E.42 redatto nel 1937 da G. Pagano, M. Piacentini, L. Piccinato, E. Rossi e L. Vietti era previsto che il quartiere espositivo (destinato, come è noto, a divenire in seguito un polo permanente della capitale) sul suo margine orientale, in un terrazzamento bruscamente digradante verso la campagna romana, ospitasse un complesso celebrativo-museale delle Forze armate. Come per altri punti nodali del quartiere, viene indetto un concorso nazionale bandito il 25 ottobre 1937 con scadenza il 31 gennaio dell’anno successivo. Il bando dà prescrizioni molto dettagliate per quanto riguarda le destinazioni funzionali, le quantità e le articolazioni degli spazi. Per ciascuna delle tre armi (esercito, marina, aeronautica) è previsto un organismo specifico, ma con assoluta centralità e preminenza dell’«edificio del R. Esercito», indicato come «il tempio solenne delle glorie guerriere italiane». I tre edifici – prescrive inoltre il bando – «dovranno costituire un ambiente edilizio da intitolarsi Piazza delle Forze Armate» (Bando di concorso per il progetto degli edifici delle Forze Armate, Roma 1937, p. 3). Seppure con il linguaggio retorico e ambiguo delle formule di rito il bando non rinuncia a dare indicazioni di ordine stilistico: «il sentimento classico e monumentale, nel puro senso di atteggiamento dello spirito, che si è manifestato ed ha resistito attraverso i secoli in tutte le innumerevoli espressioni artistiche del nostro paese, dovrà essere, pur nelle più moderne e funzionali forme, il fondamento dell’ispirazione architettonica» (ivi, p. 4). La pretesa di una continuità storica con la classicità risponde a un evidente intento celebrativo: indicare al mondo come le «gesta militari compiute nel tempo del regime fascista e soprattutto nel periodo della guerra etiopica e della proclamazione dell’Impero» (ivi, p. 8) fossero lo sviluppo coerente delle imprese guerriere del passato. Accettare di misurarsi in una prova così fortemente connotata comportava rischi evidenti ed è facile oggi affermare che la forzatura della prospettiva storica operata a fini celebrativi si è ritorta contro l’architettura. Ma evidentemente sono questi gli anni in cui, spente le battaglie dei proclami, l’architettura razionale vuole dimostrare di sapere affrontare anche la monumentalità in sé e per sé, come se da questa dimostrazione potesse discendere una legittimazione: quella di essere affidabile su tutti i temi, non solo su quelli legati al quotidiano e all’utilitaristico; di essere cioè a pieno titolo architettura civile del proprio tempo. Accettare questa sfida, senza discostarsi dalle istanze etiche originarie sottese alla nuova architettura, porta questo progetto a cercare l’impossibile sintesi in una sorta di extraterritorialità: non dal contesto, a cui anzi è prestata una attenzione notevolissima, ma dal tempo storico. Come nel progetto per la piazza di Cattaro di quattro anni dopo, l’immagine restituita dalla ventina di impeccabili tavole presentate al concorso da Bottoni, Mucchi e Pucci è quella di un luogo atemporale, dove, nonostante la perfetta funzionalità dell’organizzazione spaziale, a dominare la scena è un altrove, un luogo assolutamente immaginario. È pur vero che alla sua definizione concorre un preciso bagaglio di forme e di suggestioni, a partire da quelle accumulate dai progettisti fin dalle prime incursioni accademiche nella storia dell’architettura. Ma, se si possono riconoscere i metalli che la compongono, inedita è la lega in cui sono fusi. Uno di questi è indicato esplicitamente dai progettisti in una delle tre sezioni che formano, nell’insieme, una relazione esplicativa del progetto: «mentre nelle parti che prospettano verso la periferia dell’area occupata dagli edifici delle F.A.[Armate] questi si presentano con aspetti di palazzi per esposizione, le fronti verso la grande piazza interna hanno il severo carattere delle grandi Corti dei castelli guerrieri» ([P.B., G.M., M.P.1, Concorso per gli edifici delle forze armate. Relazione del progetto […], dattiloscritto in APB, Documenti, [1938] p. 1). Altri metalli si possono rinvenire nei richiami all’acropoli, alle città murate, alle cittadelle, infine a una piazza italiana idealizzata e allo stesso tempo attraversata da malinconia metafisica. Questi portati della memoria, e in particolare la sintesi che ne deriva, sono utilizzati per dare forma a una maschera, a una sorta di seconda pelle sotto la quale l’organismo vive la vita vera delle forme razionali. Basta un’occhiata alla pianta generale o alle fotografie dei plastici per rendersi conto come l’involucro dei fronti ciechi rivestiti in travertino, che gli edifici rivolgono alla piazza, celi la tensione dei volumi puri, combinati secondo le regole compositive del neoplasticismo e di altri movimenti d’avanguardia. Questo non significa che la maschera non sia a sua volta consustanziale a questa architettura. Come già in altre occasioni – si pensi al salone barocco recuperato in villa Muggia – anche questo progetto punta sulla sorpresa e sullo stupore. A chi avesse percorso le strade automobilistiche che contornano il terrazzamento da cui emergono i tre organismi espositivi, questi avrebbero immediatamente rivelato la loro natura attraverso i fronti nord-est e nord-ovest, quasi interamente vetrati. Ma, una volta che si fosse deciso a salire la scalinata principale e ad affacciarsi sulla grande platea pedonalizzata, il suo sguardo, contenuto dal travertino dei lunghi parallelepipedi, sarebbe stato immancabilmente catturato dalle trasparenze della grande vetrata rettangolare del «tempio solenne» e dalle linee appena avvertibili del bassorilievo lapideo, sospeso nel «salone d’onore del Regio Esercito». In tal modo il ruolo di fulcro dell’edificio ospitante il salone può esprimersi senza discostarsi dalla severità e dal rigore dell’intera piazza. L’effetto sorpresa-stupore sfugge alla stucchevolezza delle scenografie celebrative anche perché consente una digressione: l’ipotetico visitatore, nell’avvicinarsi al peristilio che regge il contenitore del salone, attraverso il colonnato, come anche attraverso la lunga successione di pilotis dell’edificio museale affiancato, avrebbe potuto scorgere il paesaggio della campagna e decidere di trovare prima o poi un momento per godersi lo spettacolo. Al rapporto con la natura è del resto improntato anche l’intero fronte verso sud-est che assume l’aspetto di una roccaforte. Ma vediamo come il complesso risponde alla funzione museale. Il peristilio che regge l’edificio d’onore, l’unico che si protende nel recinto ideale della piazza, è indicato nella relazione come «l’atrio di tutti e tre gli edifici. Da tale peristilio sono infatti immediatamente visibili frontalmente l’ingresso dell’edificio del R. Esercito, a sinistra, per chi provenga dall’ingresso principale, l’edificio della R. Marina e a destra l’edificio dell’Aeronautica» (ivi, pp. 1-2). Una struttura distributiva innestata sia sull’edificio d’onore sia sulle due ali del corpo espositivo destinato all’esercito assicura l’accesso ai tre ambienti. L’ala poggiante su pilotis è illuminata dal tetto a shed, nascosto dietro i fronti, mentre quella inferiore, ricavata nell’alto zoccolo che forma una sorta di muro di difesa, è illuminata da shed verticali. Nell’ala superiore è prevista l’esposizione di «armi ed armamenti leggeri» dall’età romana a quella moderna. Tra questa e l’ala inferiore è inserita tra i pilotis una grande sala vetrata destinata alla mostra napoleonica. Anche in questo caso i progettisti non mancano di sottolineare come «La visita a questa sala si accompagn[i] alle vedute del panorama che si gode verso sud-est […], cosicché la visita al museo è piacevolmente spezzata ed interrotta da un elemento di naturale riposo» (ivi, pp.3-4). Il percorso museale prosegue con l’edificio della Marina articolato in due volumi puri: un parallelepipedo allungato su 3 piani che chiude il lato nord-est della piazza e un corpo a pianta quadrata collegato con il primo mediante passaggi vetrati. Questo secondo volume, composto di due piani al di sopra di quello terreno e da uno parzialmente ribassato, deve la sua forma particolare alla necessità di disporre di ampi spazi per l’esposizione di oggetti particolarmente voluminosi. La visita al museo, che anche in questo caso espone la storia delle attività marinare dall’antichità al fascismo, comincia dal piano superiore. In particolare il settore di storia della nave dalla preistoria al periodo vichingo è organizzato attorno a uno spazio a cielo aperto inserito nell’ultimo piano dell’edificio a pianta quadrata. Questa corte sul tetto è protetta sui lati da pensiline e ha un pavimento in vetro-cemento per dare luce al piano sottostante; il pavimento è inoltre «coperto da un velo di alcuni cm di acqua destinata ad ambientare alcuni oggetti nautici e in un tempo a proteggere dall’eccessivo riscaldamento il piano di vetrocemento» (ivi, p. 8). La visita all’edificio dell’Aeronautica procede invece nella prima parte del percorso dal basso verso l’alto, a partire dall’atrio d’onore interamente vetrato che si attesta sul lato sud dell’ingresso principale alla piazza. Dal piano situato a questo livello si può completare la visita accedendo ai grandi ambienti in cui sono collocati diversi aerei di varie dimensioni. Questi spazi espositivi sono ricavati nella zoccolatura che nella parte sud-occidentale forma un alto spessore sul fianco del quale è ricavata la seconda scalinata attraverso cui si accede al complesso. In questa sorta di bastione, come anche in quello di nord-est, è collocato un ristorante volutamente defilato per non turbare l’atmosfera metafisica del luogo. Mentre la parte interna della platea è leggermente ribassata a creare una piazza nella piazza, su questo invaso si protende una statua con cavallo e cavaliere posta su un alto basamento. Il monumento funziona da limes sull’unico lato non chiuso da edifici alti ed emerge dal piano dell’invaso per essere percepibile anche dal basso, nel cono prospettico che il bando raccomanda di rispettare. La figura monumentale fa anche da contrappunto al lungo fronte dell’edificio dell’Aeronautica, più che mai severo nell’alternarsi serrato di un corso di bassissime finestre orizzontali e due corsi di conci regolari in travertino. Nonostante i molti pregi, che «Casabella» non manca di segnalare, questo impegnativo lavoro non viene scelto per il concorso di secondo grado dalla giuria, di cui fanno parte tra gli altri C.E. Oppo (presidente), A. Susini, L. Vietti, M. Canino e F. Del Debbio.

Giancarlo Consonni

In G. Consonni, L. Meneghetti, G. Tonon (a cura di) Piero Bottoni. Opera completa, Fabbri, Milano 1990, pp. 268-271.

G. Pagano, Occasioni perdute, in «Casabella-Costruzioni», a. XIV. N. 158, febbraio 1941, pp. 7-21.

G. Consonni, L. Meneghetti, L. Patetta, Piero Bottoni. Quarant’anni di battaglie per l’architettura, numero monografico di «Controspazio». A. V, n. 4, ottobre 1973, pp. 35-36.

C. Cresti, Architettura e fascismo, Vallecchi, Firenze 1986, p. 204.

S. Danesi Squarzina, Occasioni perdute: gli architetti lombardi all’E.42, in M. Calvesi, E. Guidoni, S. Lux (a cura di), E.42. Utopia e scenario del regime, Marsilio, Venezia 1987, pp. 101-116.

G. C. [Consonni], Progetto della piazza e degli edifici delle Forze armate all’Esposizione universale di Roma […], in G. Consonni, L. Meneghetti, G. Tonon (a cura di), Piero Bottoni. Opera completa, Fabbri, Milano 1990, pp. 268-271.

Bibliografia a cura di Giancarlo Consonni

  1. Ente autonomo Esposizione universale di Roma. Bando di concorso per il progetto degli edifici delle Forze armate, Roma 25 ottobre 1937. Stampato in opuscolo con annotazioni manoscritte, 10 pp.
  2. Relazione di progetto, bozza. Dattiloscritto con correzioni manoscritte, 9 cc./9 pp.
  3. Idem. Dattiloscritto con correzioni manoscritte, 9 cc./9 pp.
  4. Appunti relativi all’arredamento. Dattiloscritto, 2 cc./2 pp.
  5. Concorso per gli edifici delle forze armate, Roma. Relazione del progetto arch. ing. P. Bottoni, G. Mucchi, M. Pucci (bozze di stampa). Dattiloscritto, 8 cc./8 pp.
  6. Concorso per gli edifici delle F. A. Roma, progetto degli architetti ingegneri Bottoni, Mucchi, Pucci, illustrazione di problemi speciali. Dattiloscritto, 7 cc./5 pp.
  7. Preventivo spesa. Dattiloscritto, 4 cc./3 pp.
  8. Idem. Dattiloscritto, copertina con intestazione timbrata e manoscritta, 4 cc./3 pp.
  9. Didascalie delle tavole di progetto. Dattiloscritto su cartoncino, 11 cc./11 pp.
  10. Idem. Dattiloscritto, 6 cc./6 pp.
  11. Idem, bozza. Dattiloscritto con correzioni e integrazioni manoscritte, 11 cc./11 pp.
  12. Idem, bozza. Manoscritto, 2 cc./2 pp.
  13. Bozza di lettera/elenco della documentazione di partecipazione al concorso indirizzata all’Ente autonomo Esposizione universale di Roma, 20 febbraio 1938. Manoscritto con correzioni, 1 cc/1 pp.
  14. Appunti sui progetti in concorso. Manoscritto, 2 cc./2 pp.

Archivio Piero Bottoni

DAStU - Politecnico di Milano

Campus Bovisa
Via Giuseppe Candiani, 72
20158 Milano

t +39 02 2399 5827

archivio-bottoni-dastu@polimi.it