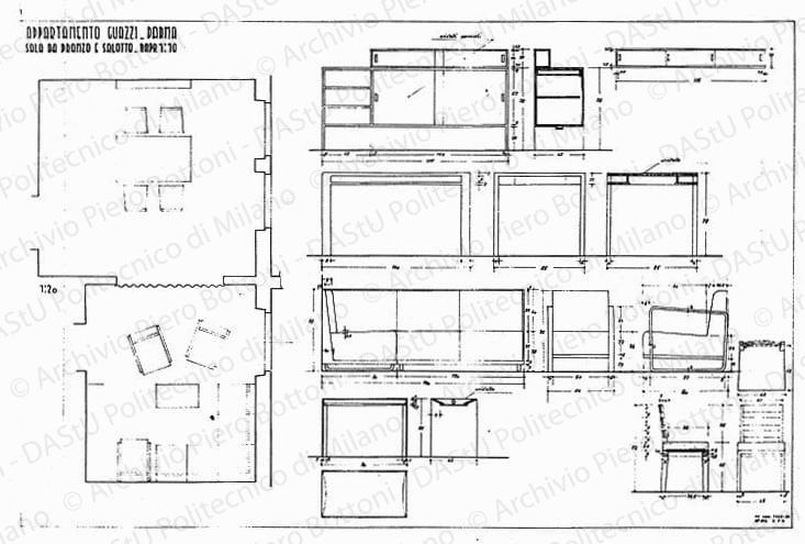
op 164 – Arredamento di casa Guazzi a Parma, 1937, con Mario Pucci

opera 164

Arredamento di casa Guazzi a Parma, 1937, con Mario Pucci

op164 copertina

  1. Sartoria Anselmo Guazzi, Parma […], lettera indirizzata al Sig. Pucci dott. Ing. Mario, architetto, via Rugabella 9, Milano, 28 ottobre 1937. Dattiloscritto su carta intestata, firmato, 1 cc/1 pp.
  2. Sartoria Anselmo Guazzi, Parma […], lettera indirizzata al Sig. Pucci dott. Ing. Mario, architetto, via Rugabella 9, Milano, 13 dicembre 1937. Dattiloscritto con annotazioni a matita su carta intestata, firmato, 1 cc/2 pp.

Archivio Piero Bottoni

DAStU - Politecnico di Milano

Campus Bovisa
Via Giuseppe Candiani, 72
20158 Milano

t +39 02 2399 5827

archivio-bottoni-dastu@polimi.it