Archivio Piero Bottoni
Home page
Bio-bibliografia
Biografia di Piero Bottoni
Opere
Opere di Piero Bottoni contenute nell'archivio
Scritti
Scritti di Piero Bottoni
Altri documenti
Materiali di altri autori presenti nell'Archivio: documenti, fotografie e libri
Attività
Le ultime notivà dall'Archivio Piero Bottoni
Info
Informazioni sull'Archivio Piero Bottoni e contatti
Cerca
Loading...
Home
Archivio Piero Bottoni
Opere di Piero Bottoni
Architettura, Urbanistica e Design (1924-1973)
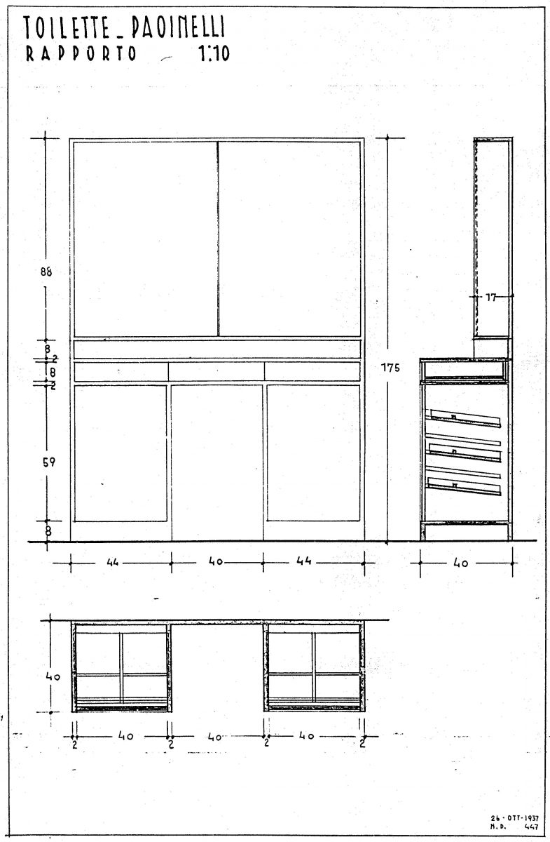
op 161 – Mobile-toeletta per casa Paoinelli, 1937
Ultimo aggiornato:
26 Novembre 2025