Home page
Bio-bibliografia
Biografia di Piero Bottoni
Opere
Opere di Piero Bottoni contenute nell’archivio
Scritti
Scritti di Piero Bottoni
Altri documenti
Materiali di altri autori presenti nell’Archivio: documenti, fotografie e libri
Attività
Le ultime notivà dall’Archivio Piero Bottoni
Info
Informazioni sull’Archivio Piero Bottoni e contatti
Cerca
←Attività
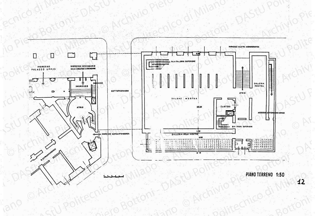
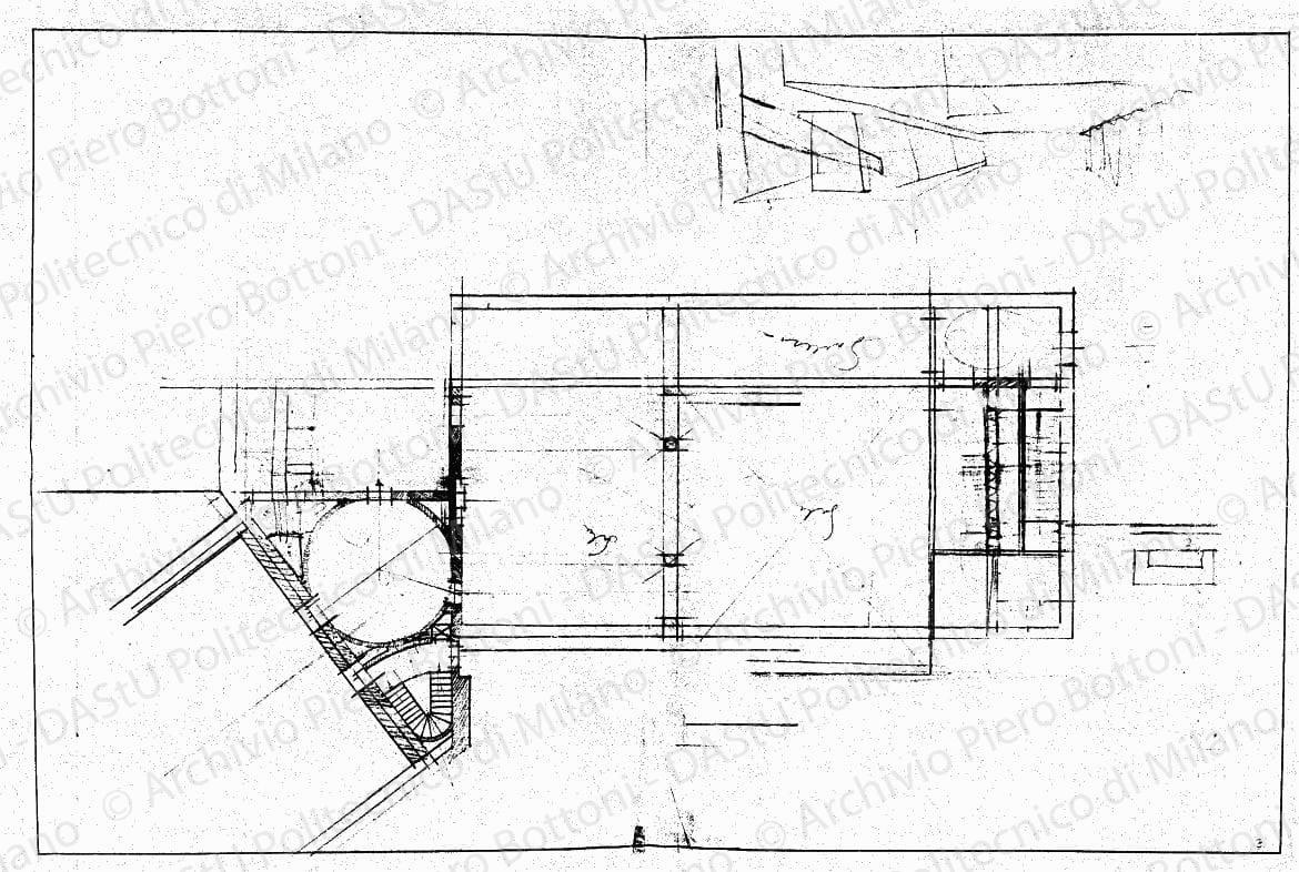
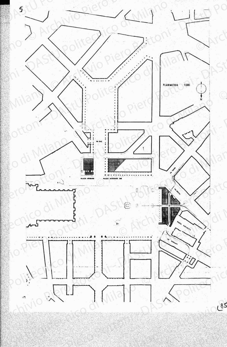
Disegni Fondo Piero Bottoni
23 Ottobre 2025
/ ultimi pubblicati
La “Donnina di Milano” al QT8
8 Ottobre 2025
Una poesia per non dimenticare
26 Settembre 2025
Un incontro su Piero Bottoni
19 Giugno 2025
Villa Muggia a Museocity
27 Febbraio 2025
In onda su Rai Storia
19 Giugno 2024
←
Precedente:
Fotografie Fondo Piero Bottoni
Successivo:
Fotografie Fondo Piero Bottoni
→